Friday, 29 November 2019

Gaur City Center Business Complex Greater Noida West



Gaur City Center is well developed business complex by top class real estate developer of the Gaursons India, which is situated at Gaur Chowk, Greater Noida West. The project offers multiplex, office space, retail shop, food court and many more. It’s well connected to Ghaziabad, Noida, Greater Noida, Meerut, Hapur, Faridabad and many more.
Gaur More Commercial Project: Gaur World Street Mall Noida Extension

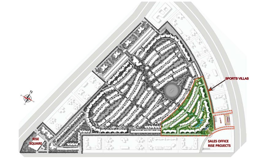
Rise Forest Floor Luxury Low Rise 3 BHK Flats Noida | Greater Noida


Rise Forest Floors Residences is a residential project located in prime location of Greater Noida West (Noida Extensions). This project developed more than 85 acres area are embellished with just 600+ villas and 200+ floors, cricket stadium, golf greens, lakes, forest and green are or more. As the name of this project, all the project developed with very good environment, all the project have surrounding green area that provide you pure air or green environment. This project hasSprawling, premium, 2 side open Ground floor with 4 floors (only 2 flats per floor) total 5 floor have.

This project developed one of the best real estate company Rise Projects Pvt. Lmt. We are delivered many residential and commercial projects in all over Delhi NCR. Forest Floor is one of the best projects by Rise Projects Pvt. Lmt in the prime location of Noida or greater Noida. If we talk about price of this project then its starting from 70 Lakhs.

Facility of Rise Forest Floor Project


  •          High Street Retail Shops
  •          Indoor/Outdoor Sports Stadium
  •          Less than 1 KM From Noida
  •          The famous RED STEPS of Times Square, New York
  •          Landmark right at the new entry point of Greater Noida West

Rise Forest Floors is a remarkable project from Rise Projects, which offers many useful amenities such as swimming pool, gym, yoga, club house, garden, car parking, motorbike parking, tennis court, water supply, walking track, 24 hours power backup, and many more you will get in this project. Besides, the project is spread over area up to 90 acres that is enough for walking, play any game, parking and landscape garden too.  Hence, it is an ideal or best project to make investment or buy own dream home.

In this project, you will get 3BHK and 4 BHK flats in the fixable price that will suitable for those guys who want to buy own dream home or also those guys who want invest money so without any wait now you can directly call Investor Mart real estate company who help to buy own dream home because Investor Mart have all the information regarding this project. If you any issues then its resolve by Investor Mart.

Without any wait call or visit Investor Mart website for complete information regarding Rise Forest. In this website you get complete information of this project that located in Noida. We are always happy to help you when you get or buy own dream home

Rise More Project : Rise Sports Villas Noida Extension

Wednesday, 27 November 2019

ATS Le Grandiose @3/4 BHK Luxurious Apartments in Noida


Wake up to wonderful green landscaped outdoors, and ready to take a refreshing morning walk enjoying the lush greenery around. This project is located in the prime or wonderful location in Greater Noida, Sector 149. Located a few minutes from ATS Pristine (This is the other project ATS Group), this project stands at the medial of Delhi NCR nearby sports city. It is a planned sports complex located few minutes from right off Noida Expressway and the proposed Metro in Sector 149 Noida or greater Noida.

The project provides the best connectivity to specific area of the Noida city and also provides the best connectivity with whole Delhi NCR. Nearby this project you get best healthcare institutions like NMT Hospital, ITS Dental College Surya Hospitals, Astha Hospital and not hospital also you get nearby reputed school, collage, Institutes like Kendriya Vidyalaya, Sharda University and many more. This project has 3/4 BHK Flats, which are large and lovely overlook green lawns. There is sample natural light bathing the flats and each flats well maintains its privacy. This project also for low budget people then we can say that is a low density project in best location of greater Noida.

The flats of ATS Le Grandiose with its specific and wonderful design or architecture plans stand in the package. You can get specific balcony in every and each flats. Sunlight comes in all the flats.
It comprises a gated community, swimming pool, car/motorbike parking facility, complete decorated gym, a jogging course,specific clubhouse, badminton, Table Tennis courts and multipurpose hall and high-tech safety policy (All the security cover by under CCTV Camera).


Highlights of ATS Le Grandiose projects

This project is well furnished with all contemporary yet necessary facilities and amenities to make your house wonderful. Now we are going explains some more facility below


  •         Floating Pool
  •          Shopping Center Park
  •          Children's Park
  •          Well Equipped Gym
  •          Indoor Games
  •          Parking Space
  •          24x7 Power Supply
  •          Billiards Room
  •          High-End Elevator
  •          Banquet Room
  •          Day Care Center
  •          Club House
       
     ATS Group New Project Booking Started More Details ATS Destinaire Sector 1 Greater Noida West.

And also get the cricket, football grounds and more facility.

Now you need to contact with Investor Mart who can help you to buy flats and solve the all issues or doubts you have so visit now Investor Mart website or call and get the complete information about this project and also get all other ATS group project information. Now you can buy a home in the best location of Noida with help of Investor Mart

Tuesday, 26 November 2019

Gaur City 14th Avenue luxurious apartments Greater Noida West

              
         

  Gaur City 14th Avenue  is 2BHK and 3BHK luxurious apartments are well located at prime location of Greater Noida West, Sector 16C. This project is also in Gaur City 2.

Monday, 25 November 2019

Gaur City 2 Luxurious Township Sector 16C Greater Noida West


Gaur City 2 is a leading residential township offers 2 BHK, 3 BHK and 4 BHK flats & apartments with size range from 855 sq.ft. to 2200 sq.ft. If you book a flat in Gaur City 2 Greater Noida, you will be able to spend quality time with your family both inside and outside your house as the society is loaded with modern amenities like Club House, Coffee Lounge, Restaurants, Cafeteria/Food Court, Jogging and Strolling Track, Outdoor Tennis Courts, Power Back Up, Swimming Pool, Lift, Security, Park, Rain Water Harvesting, Banquet Hall, Gymnasium, Kids Play Area, Water Storage, RO Water System, Water Storage, Multipurpose Hal, CCTV Camera, Fire Fighting Equipment and many more. 
More Commercial Projects -  Gaur City Center

Wednesday, 20 November 2019

Saya Zion--- Premium Housing Project for Buyers

If you want to buy reasonable apartments at Grater Noida Extension, West, you should check out the project named Saya Zionwhich is launched by one of the leading real estate giants named Saya Developers. The company is striving in the competitive property industry since 2010 and has been covered up many residential projects yet. At present, the company still has many on-going residential projects, which is already in demand by the home seekers in Delhi/NCR. For instance, the Saya Zion is one of those premium residential projects, which is getting huge popularity in the industry. This luxury residential project offers modernistic apartments in 2BHK, 3BHK, and 4BHK ranges. Moreover, the project is designed precisely and has good specifications such as 9 towers, 22 floors, and 758 units as well. Besides, the giant is progressing well in the market by developing furnished apartments that already include the best housing facilities like kitchen, bedrooms, hall, balcony, windows, doors, bathroom, etc. Hence, you will find so many facilities in this project of Saya developers for sure.

Being located at Greater Noida, West, Saya Zion gives good proximity with nearby shopping mall, hospital, metro station, bus stand, etc. Moreover, the project site is also closer to the NH-24, DND Flyover, FNG Expressway, Fortis hospital, etc. Apart from that, you will find the project location easy to commute via road and is full of greenery around the corner.  Hence, it is a good idea for families to live such an eco-friendly environment and nature rich place and breathe well. So, if you are a nature lover, you should not miss to book for your unit in this magnificent housing project of Saya developer and do booking as soon as possible. Apart from that, the project site covers the area up to 5.17 acres and has some open space too for developing garden.


Saya Zion boasts its worth and dignity through its superb amenities as well. You will be amazed to find facilities in this project such as club house, car parking, garden, gym, swimming pool, lift, fire fighting system, intercom, water supply, jogging track, tennis court, CCTV, etc. Moreover, the developer has also planned to provide good drainage system and sewage facility at the project’s site to manage the water flood issues at the location in rainy season. Thus, you will be delighted to the best things in this housing project of Saya for sure.

The price ranges of all ranges of apartments in Saya Zion are also affordable. For more details about price of apartments and possession date, you may contact to the Saya developer or visit its official website too. You can also compare the prices of apartments in this project on the website of developer and may place the order online. Besides, you can take information about project like facilities, prices, and procession time apartment from online customer care executives of Saya Company over the phone. So, do not be late to book for your unit in this sought after residential project and go for its now!

Saya Home a new Commercial project booking Started : Saya South X Food Court Noida Extension

Friday, 15 November 2019

ATS Destinaire is an ultimate reflection of current lifestyle


with the best location in Sector-1, Greater Noida West. ATS Destinaire Project by ATS group hosts in its lap exclusively designed Residential Flats. This project is inspiring in stirring in luxury,design, and enveloped by surroundings green area. ATS Destinaire haveshopping destinations, schools, collage hospitals, tech parks and and many more that required in life near this project.ATS Group has been involved in producing many residential and commercial projects with awesome crafted interiors as well as exteriors. ATS Destinaire of 3/4 BHK flats that are finely crafted.



ATS Destinaire is the newly launch residential project by ATS Group in Noida or Delhi NCR. ATS Destinaire of ATS Group is having 3 BHK and 4 BHK Flats apartments located at Extension. It’s located at best location of (Greater Noida Sector – 1) Noida extension as this project just on the road connecting of Noida extension and sector-78 Noida. Flats in ATS Destinaire are awesome designed and having state of the art architecture. This project completed is loaded with all the modern recreational and amenities. This project developed under the guide of best Architecture and project is going to dream home or investing project those guys who want own dream home or investing in best location of the Noida extension.

ATS Destinaire Best Facility. This project is having all the modern facility likeswimming pool, playground,central parks, club, sports facilities,gym,  banquets, sit out areas, lawns, recreational greens area, best security, piped gas supply, garbage collection. 24*7 power supply and many more services you will get in this project. In sports amenities projects have outdoor games likebasketball court,  badminton court, basketball court,lawn tennis court, skating ring, swimming pool and  also have indoor games there would be amenities like carom, billiards, chess,pool, snooker,table tennis, gym, and other boards games. Apart from games you have banquets and big party halls in ATS Destinaire.

This project is the best for investor or also dream home buyer because this have nearest like-


  • .       Metro Station
  • .       Hospital
  • .       School, Collage
  • .       Play area
  • .       GYM and more

ATS Floral Pathways Price List Very attractive Are you want the invest or buy dream home in ATS Destinaire then you can contact with Investor Mart who is leading real state company in the area of Noida, With Invest mart you get the best deal for all the project.

Monday, 11 November 2019

Gaur Saundaryam | 3/4 BHK Apartments Resale Offers


Are you looking for the best deals on residential projects of Gaursons, you should check out for the Gaur Saundaryam  3/4 BHK offer that facilitates the home seekers to grab fully furnished apartments at highly competitive prices. The project is ideal for those who have limited budget and missed out to book for property in this dream project earlier. However, it is a high time for the customers to grab such resale offer that enables buyers to grab apartments of their choices at the best price rates. Gaur Sundaryam has some attractive specifications such as 13 towers, 27 floors, and 2068 units too. Besides, the project is sprawled over the widest area up to 17.57 acres land too. Hence, the project is huge enough that appeals the buyers through its incredible features.



You will be delighted to have modern design apartments under the Gaur Saundaryam 2/3 BHK Flats resale offer such as 3BHK and 4BHK ranges. Every range of apartment is versed with the best features and possesses elegant designs too. Moreover, you will be delighted to find all types of housing comforts in this project such as windows, doors, kitchen, hall, bedrooms, bathroom, etc. Besides, the size of each apartment is also huge that is enough for all sizes families to live easily. Apart from that, this project is located an eco-friendly place that is free from pollution too.


Gaur Saundaryam resale is the best offer for home buyers to book for property at reasonable price than market rate. You will also be pleased to find some more useful amenities in this project such as gym, swimming pool, parking, garden, club house, water supply, tennis court, jogging track, intercom, fire fighting system, lift, security, etc. Moreover, the project site is also wide and enough space to develop landscape garden and wide sports ground for kids too. It’s not over, you will also find good facility of drainage and sewage systems at the project site to cope with water flood situation in rainy season.


Hence, it is a good opportunity for home buyers to grab affordable property under the best Gaur Saundaryam resale offer and enjoy living in the dream house with dear ones. For more details about pricing and other specifications of the apartments, you should refer website of the Gaursons and do compare the best resale offer for yourself wisely. So, do not waste the time and book for unit now!

Gaur Project-

Gaur Sportswood



Saturday, 9 November 2019

Gaur Runway Suits – Integrated residential project with the advantage of Gaur Township

Looking for modern living space in a commercial complex that is cheaper but filled with contemporary amenities? Gaur Runway Suits Yamuna Expressway answers the call while the price range fits in to your purse quite nicely. It is a combination of residential and commercial suites that will allure you to invest immediately once you see what the project has to offer.

Location

It is part of the Gaur Yamuna City and is located on the Yamuna Expressway and integrated within the 250 acres space of the master project. The expressway leads to Agra, Lucknow and Kanpur and to the rest of the NCR and Delhi. An approved Noida International airport is coming up in the vicinity. Proposed Metro station, Patanjali Yogpeeth, F1 racing track and International cricket stadium are important landmarks earmarking the location.


Master Plan

Total area covering the project is 2.71 acres and it has 15 floors of commercial and residential suites offered at a price range of 18.44 lacs to 27.6 lacs. Ground floor consists of suites and landscaped terraces while 1st to 11th floors are suites and 12th and 12A floors are suits and services and suits, club, landscape party terrace, and infinity pool.

Floor plans

62 suites and landscape terrace are designed into the ground floor in approximately 1347 sq meters area. 62 suits are accommodated in to each floor starting with 1st to 11th floors. Occupied area is 1101 square meters. The 12th floor consists of 56 suites in an area of 1201 sq meters and a pool service area is being built. The 12 A floor has SPA, Gym, billiards room, card room, and other sporting rooms.

Resale value

The Gaur Runway Suites is under construction and is likely to be completed in 2027.

Amenities


  •          Club house
  •          Party Terrace
  •          Landscaping
  •          Banquet hall
  •          Infinity pool
  •          Billiards and card room
  •          Library
  •          Indoor sports
  •          Restaurant
  •          Kitchen
  •          Swimming pool
  •          Amphitheatre
  •          Gymnasium
  •          Rain harvesting
  •          Sewage disposal unit
  •        Basic amenities
Fast moving lifts, spacious car parking, and an efficient fire fighting system is allocated for the project. Shopping centre, restaurant, laundry and external street lighting are other basic facilities provided by the builders. Besides these there are many earmarked plots coming up in the name of cultural city centre, petrol pump, hospital and nursing home, convenient shops, milk booths, crèche and play school, and commercial buildings nearby. Gaur Runway Suites is an integrated project which has its own advantages as Gaursons are noted for their excellence in providing comfortable accommodations.

More Inquiries Gaur Siddhartham Payment Plan Very easy and lowest price. 



Thursday, 7 November 2019

Gaur City Center | Retail Shops in Noida Extension



Gaur City Center is among the top commercial projects in Greater Noida, and it is a multi-floored high-end street shopping complex coming up near Gaur Chowk. This is a great investment project if you are starting a business or promote ongoing enterprise, as it boasts a customer base of over 5 Lakhs located nearby. It is an iconic building structure signifying prominence and the upcoming Metro and the 130 meter wide roads promise great customer prospects for business.

Location
Great location is what signifies the usefulness of the Gaur City Center and the proposed Metro station nearby is going to be a great crowd puller and fodder for your business needs. This multi-storied shop and office space is coming near Gaur Chowk, Greater Noida (W) and has easy access to the rest of NCR and vast humanity.
Master Plan
This Shopping Centre is built within an area of 5.49 acre and has as many as 17 floors having 1535 units approx of shops and offices. This is part of the Gaur Commercial hub with the capacity to park 4000 cars. It is planned to be a pioneer shopping project with a hospital and petrol pump already in operation.
Floor Plans
Floor plans contain 1 basement, lower ground floor, first floor, second floor and third floor to 17th floor. The space is provided for shops, offices, banquet, hotels etc. The LGF has an approximate of 460 units, while the GF, FF, and SF have 345, 365 and 365 units. 2 nos of lifts have been allocated for shopping areas. Office spaces are within the built up space dimension of 23.23 sq mt to 41.81 sq mt and the base booking prices range from 11.25 lacs to 17.5 lacs to the first category and 20.25 lacs to 31.5 lacs for the second category. Commercial spaces are available within the space dimensions of 13.1 sq mt to 13.84 sq mt and the price range is within 11.28 lacs to 18.63 lacs.
Resale
It is an ongoing project and expectations are high considering the reputation of Gaur Malls and shopping centers doing thriving business all over the NCR. Resale properties are on the cards
Amenities
  • Fast moving lifts
  • 24 x 7 water and power supply
  • Fire fighting system
  • Car parking
  • Entrance lobby
  • Escalators
  • Waiting lounge
  • Street lighting
  • Landscaped garden
Four side entry, round the clock security, Central air-conditioning for shops, food courts are other highlights that make the Gaur City Center a complete commercial experience.
Gaur Commercial Projects : Gaur World Street Mall

Wednesday, 6 November 2019

Gaur Sportswood @3 BHK Apartments Sector 79, Noida

Gaur Sportswood 
A high-end residential paradise, an urban kingdom of luxury sports living; Gaur Sportswood at sector-79 Noida is the new offering of renowned Gaurs Group. A place enriched with lush greenery, comfort, entertainment, convenience, and latest worldly amenities where you can explore life to the fullest. Gaur Sportswood truly defines the hallmark of Gaur Group which further attributes luxury living for the new-age home buyers. Here space and style are executed in adherence to the latest international standards that reflect the architecture of the world's top fashion destinations like France and Italy. It is a secure gated community where most of the essential facilities are present inside the campus or in the close neighborhood. In this way, it proves more convenient for you and your family considering the facilitation of daily needs.

Gaur Sportswood homes are available in 3 BHK and 4 BHK configurations. The 3 BHK apartments come in three variations of 1540 sqft, 1730 sqft, 2470 sqft, while the 4 BHK unit is available in the size of 2780 sqft. This ready to move housing project built over 12 acres land parcel out of which 70% is the dedicated open space in its premises. Project master plan is well thought out comprising 12 apartment towers including 20 to 27 floors in each tower, total 1060 units, and the maximum number of units on each floor is limited to 04. Painstakingly designed spacious apartments with an intelligent floor plan are fully equipped to fulfil your long-cherished dreams and helps you to rediscover life in a new light. It has an abundance of greenery, leisure, comfort, and cutting-edge worldly amenities. Huge 2.78k sq.m operational clubhouse, mesmerizing lush green landscape, jogging track, and beautifully-planted pathways will make you feel living in the lap of nature.

The requisite high standards of ultra-luxury sports living are superbly matched by Gaur Sportswood apartments. If you wish for a clean, green, stress-free living, choose Gaur Sportswood Noida which offers the best location, vital convenience and luxury altogether. Premium strategic location is one of the essential benchmarks of urban luxury living, It is situated at the finest location of sector 79, Noida. This place is encircled by 45 m road and placed opposite of a 35 m wide green belt. Also, well connected to various parts of the city and merely 7 km away from the Noida city centre metro station. Gaur Sportswood is an ideal opportunity for both personal housing as well as the investment purpose. High resale value, very competitive price list, and Gaurs brand value makes Gaur Sportswood an attractive investment destination of Noida.

Saturday, 2 November 2019

Gaur Atulyam located in Sector Omicron 1, Greater Noida

Gaur Atulyam located in Sector Omicron 1, Greater Noida is designed to cater to the housing needs of all types of economy. The builders have accordingly constructed 1,2,3& 4BHK apartments that will suit your purse and purpose in the most comprehensive way. The price band is worked out in the range of 28.69 to 50.53   Lacs and the Phase 1of the project is complete and ready to move. Omicron 1 is a fine location as it is a fast developing residential district with a mixture of shopping malls, schools and other lifestyle points within easy access.

Location

The location of the project Sector Omicron 1, Greater Noida is within close proximity of Great Noida Expressway, Eastern Peripheral Expressway and Yamuna Expressway thus provides fast access to the NCR and Delhi.  Pari Chowk, proposed Metro Station, Gautam Buddha University, Water Park, Gnida Park, INOX cinema, Ivory Hospital are some of the well known land marks that connect Atyulyam with rest of NCR.




Master Plan

Total project area is 8.10 acres out of which 65% is slotted for open space green development. There are 10 towers containing 19 floors carrying a total 1605 units of the above mentioned configurations. It was planned in two phases and the Phase 1 is completed and ready to move while the Phase 2 is under construction.

Floor Plans

The 2BHK in Phase 1 contains 2 Bedroom, 2 Bathrooms, and 2 Balconies and is of 88.72 sqs meter and 96.62 sq meters respectively. The 3BHK is offered with 3 Bedrooms, 2 bathrooms, 2 balconies and covers 120.77 sq meters area. For the 4 BHK it is 4 bedrooms, 3 Bathrooms and 4 Balconies and the covered area is 154.68 sq meters.

Resale

Being located in a buzzing residential cum commercial area, the project has great resale value and above configurations are available for resale

Amenities provided by Gaur Atulyam
·         Ultra Modern Clubhouse
·         Open space with innovative landscapes
·         Community hall
·         Entrance Plaza
·         Basketball court
·         Lawn Tennis
·         Table tennis
·         Cricket Pitch
·         Amphitheatre
·         Billiards
·         Pool table
·         Senior citizen sit-out
·         Yoga and meditation area
·         Swimming Pool for adults
·         Gymnasium
Basic facilities
·         Round the clock water and power supply
·         Fast moving lifts
·         Intercom
·         Spacious car parking
·         Children play area

Tight security has been offered via CCTV and manned security at Gaur Atulyam. Gated community further enhances the safety of the residents while the complex retains the ability to withstand earthquakes. Investing in the project can be a lucrative decision as it has great resale value considering the location.

Gaur City 1st avenue resale unit available more details